
If you are interested in this lot please contact us via the form below and we can discuss all the options with you.
Lot Description
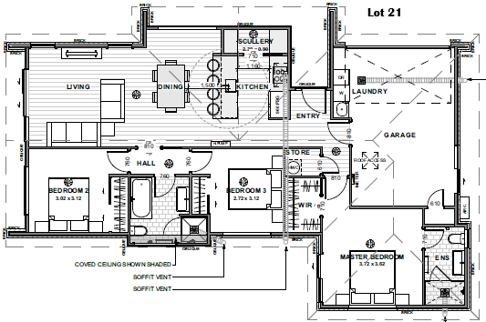
Ideal for first-home buyers or downsizers, this inviting 3-bedroom property blends comfort with easy care. The open-plan living hub connects to a private courtyard, creating the perfect spot for relaxed evenings. With well-proportioned bedrooms, master with ensuite & WIR, and internal-access garaging, this home offers outstanding value in a sought-after location.
Design and Build
Floor Area 136m²
Section 422m²
Price $1,030,000
1
3
2
2
Contact Details
Sales Consultant 0274 388 722
Contact us about Lot 7-21
"*" indicates required fields